China's 'Super Embassy' in London Sparks Controversy Over Secret Chamber and Espionage Fears, Security Experts Warn
China's proposed 'super embassy' in London has ignited a firestorm of controversy, with security experts warning that the facility could serve as a hub for espionage operations targeting Europe.
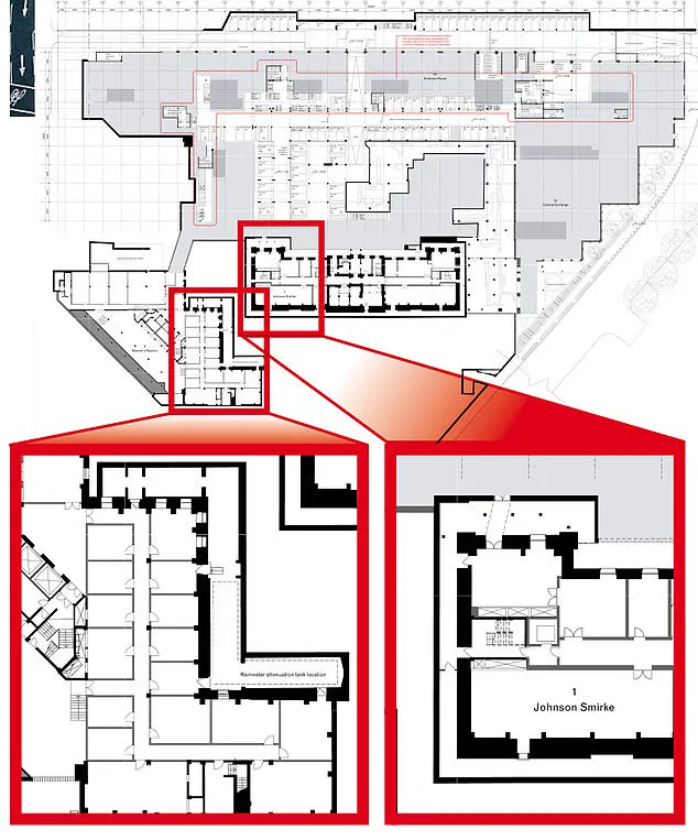
At the heart of the debate are unredacted planning documents that reveal the presence of a secret chamber located in the north-west corner of the proposed embassy complex.
This hidden room, positioned just metres away from a critical fibre-optic cable network transmitting financial data from the City of London and Canary Wharf, has raised alarm bells among intelligence analysts and policymakers.
Professor Anthony Glees, a professor of intelligence and security at the University of Buckingham, has called the proximity of the secret room to the cables 'absolutely mad.' In an interview with LBC's Nick Ferrari, he highlighted the ease with which the facility could be used to intercept data, given the close proximity of the rooms to the cables. 'You can see from the plans how close rooms run to those cables – they can be tapped very easily,' he said. 'There are also heating systems suitable for large servers.
In my view, this would not just spy on the UK, it would become the Chinese intelligence hub for the whole of Europe.' The concerns extend beyond espionage.
Professor Glees also pointed to the size of the embassy complex, suggesting it could be used to intimidate and detain critics.
He referenced a 2022 incident in which a Hong Kong democracy protester was dragged into the Chinese consulate in Manchester and assaulted.
This, he argued, underscores the potential for the embassy to be used as a tool of political pressure against dissenters.
These warnings have been echoed by a group of Labour MPs, who have urged Prime Minister Sir Keir Starmer to reject China's plans.

In a letter to Communities Secretary Steve Reed, the MPs highlighted security concerns, stating that the embassy could be used to 'step up intimidation' against dissidents.
Sarah Champion, a member of parliament's Joint Committee on the National Security Strategy, emphasized that the concerns about the proposal are 'significant and unresolved.' The letter cited China's recent track record of espionage, interference activities, and bounties offered against UK-based Hong Kongers, as well as the fact that the embassy would sit above infrastructure critical to the UK's economic and national security.
Downing Street has responded to the allegations, insisting that national security issues linked to the planning application have been 'considered and addressed.' The Prime Minister's official spokesman stated that the decision on the application would be made by the Secretary of State for Housing, Communities and Local Government, and that the process is 'quasi-judicial.' He added that 'national security is the first duty of any government' and that it has been a 'core priority throughout this process.' The spokesman confirmed that a planning decision was expected by 20 January, but declined to provide further details on security-related considerations.
The secret room revealed in the plans is triangular in shape, measuring up to 40 metres across and 2-3 metres deep.
Its location and dimensions have only heightened concerns about its potential use.
As the debate over the embassy's construction intensifies, the UK faces a complex balancing act between diplomatic relations with China and safeguarding its national security.
The outcome of the planning application could have far-reaching implications for the UK's approach to foreign embassies and the management of critical infrastructure in the heart of London.

The controversy surrounding the super-embassy underscores the growing tensions between the UK and China, particularly in the context of global espionage and the protection of sensitive data.
With the planning process nearing a critical juncture, the eyes of the world will be watching to see whether the UK will take decisive action to prevent what some fear could be a major security threat to Europe.
The proposed new Chinese embassy in London has sparked significant controversy, with revelations about its design and potential functions raising serious security concerns.
According to The Telegraph, the building will include at least two air extraction systems, a feature that appears to suggest the presence of heat-generating equipment such as high-performance computers.
This detail, coupled with the sheer scale of the project, has led to speculation about the embassy's dual role as a diplomatic mission and a potential hub for intelligence operations.
The structure is part of a network of 208 secret rooms—most of which remain hidden from public view in planning documents—located beneath the so-called 'super-embassy.' These rooms are set to be constructed on the site of the Royal Mint, pending approval from UK Prime Minister Sir Keir Starmer.
The political opposition to the project has been widespread, with MPs from across the ideological spectrum expressing alarm over the security implications of allowing China to establish a new embassy on such a sensitive location.
Critics argue that the proximity of the proposed embassy to critical infrastructure, including major financial and communications hubs, poses an unacceptable risk to national security.
The site, which China acquired in 2018 for £255 million from the Crown Estate, lies within the City of London, a region home to vital underground communications cables managed by companies such as BT, Colt Technologies, and Verizon.
These cables serve as lifelines for financial institutions, data centers, and other key sectors, making their potential vulnerability a focal point of concern.

Downing Street has reportedly advised the Prime Minister to approve the embassy plans before his upcoming visit to China later this month.
This move is seen as an effort to mend diplomatic ties with President Xi Jinping, following a series of planning delays and mounting tensions.
However, this timeline has drawn criticism from security experts and lawmakers alike.
Professor Alan Woodward, a renowned cybersecurity expert, has described the proximity of the embassy to the communications cables as a 'red flag,' warning that the physical closeness of the building to the cables would present an 'enormous temptation' for espionage activities.
His concerns are echoed by others who fear the embassy could function as a 'spy center,' with China potentially tapping into the cables to intercept sensitive information.
Further fueling these fears are the revelations from The Mail on Sunday, which uncovered plans for 'spy dungeons' within the embassy.
These include two suites of basement rooms and a tunnel, with the purpose of these spaces redacted from public documents for 'security reasons.' Diplomatic sources have also indicated that the embassy will house a 'spy campus,' providing on-site accommodation for over 200 intelligence officers.
This infrastructure, combined with the secrecy surrounding the project, has only deepened suspicions about the embassy's true purpose.

The redacted sections of the planning documents, which highlight the existence of unlabelled basement rooms and tunnels, have been described as 'shocking' by Shadow Justice Secretary Robert Jenrick, who has accused the government of compromising national security in its handling of the proposal.
China has consistently denied allegations that the embassy is intended as an espionage hub, with officials emphasizing its role as a legitimate diplomatic mission.
Meanwhile, BT has stated that it has 'robust security measures in place' to protect its infrastructure, working closely with the government to mitigate risks.
However, these assurances have done little to quell the concerns of those who see the embassy as a potential threat.
Notably, individuals who have fled Hong Kong's Chinese regime have expressed fears that the embassy could be used as a base to track and target dissidents.
The location's strategic position, near the City of London and Canary Wharf, along with its proximity to three major data centers, including the Stock Exchange, only heightens the stakes of the debate over the project's approval.
As the UK government weighs its decision, the controversy surrounding the embassy underscores the complex interplay between diplomatic relations, national security, and infrastructure planning.
With the Prime Minister's approval looming and the potential consequences of the project still uncertain, the situation remains a flashpoint in the broader discussion about the UK's approach to China and the balance between economic interests and security imperatives.
Photos